Skip to content
  • 1300 638 311
  • [email protected]
  • My Account
  • Checkout
  • Cart
  • My Account
  • Checkout
  • Cart
$0.00 0 Cart
  • Home
  • About Us
    • Testimonials
  • Services
    • MDF Jumpering
    • Liftphone
      • Medical Phone
    • Cel-Fi Repeaters
      • Cel‑Fi 4G/5G Site Surveys & Signal Upgrades
    • Data Cabling
      • Private Internet Technician
      • Registered Cabler
    • NBN Lead-In
      • NBN NTD Relocation
      • NBN Private Technicians
    • DSL Testing
      • DSL Test Report
      • Error Crc’s
      • Member Login
  • Optical Fibre Repairs
  • Photo Gallery
  • Contact Us
    • Expression of interest
  • Shop
  • Home
  • About Us
    • Testimonials
  • Services
    • MDF Jumpering
    • Liftphone
      • Medical Phone
    • Cel-Fi Repeaters
      • Cel‑Fi 4G/5G Site Surveys & Signal Upgrades
    • Data Cabling
      • Private Internet Technician
      • Registered Cabler
    • NBN Lead-In
      • NBN NTD Relocation
      • NBN Private Technicians
    • DSL Testing
      • DSL Test Report
      • Error Crc’s
      • Member Login
  • Optical Fibre Repairs
  • Photo Gallery
  • Contact Us
    • Expression of interest
  • Shop

Cel‑Fi 4G/5G Site Surveys & Signal Upgrades

Eliminate dead‑spots, boost productivity – keeping you connected, even in an emergency.

SUFFERING POOR GSM COVERAGE?

Why Reliable Indoor Mobile Network Coverage Matters

Poor mobile reception drains batteries, stalls EFTPOS and cloud apps, frustrates staff, students and visitors and can leave you without a lifeline in an emergency. Cel‑Fi is the only certified booster in Australia that’s approved by all three carriers: Telstra, Optus and Vodafone.

The Cel‑Fi smart repeater, combined with a professionally planned antenna layout, restores network coverage – legally and permanently.

cel fi scan sydney

Our 3‑Step Survey Process

From $1,000 + GST – Special $800 + GST until 31 Dec 2025 (call to lock it in)

Step What We Do What You Get

1. Floor Plan Supplied

You email us your latest floor plan (PDF/JPEG/PNG).
We prepare a survey route and mark critical zones.

2. On‑Site Survey

ARCS technicians measure 4G/5G signal strength (RSRP, RSRQ, SINR) for all three carriers using the CompassXR field analyser; we test any existing Cel‑Fi units and identify shadow areas.
Live readings plotted onto your floor plan.

3. Comprehensive Report

Within 3 – 5 business days you receive a detailed report and upgrade roadmap recommendations from our technicians and quote.
  • Map of current signal levels
  • Recommended donor‑antenna position(s)
  • Cel‑Fi model & quantity (G41/G51) or R41 (Mobile Applications)
  • Cable runs, splitters & labour estimate.

What We Can Do For You

  • Test existing services – validate your current Cel‑Fi G31/G41/G51 deployment and diagnose faults.
  • Map out new services – design a repeater and antenna layout for new builds or refurbishments.
  • Fix poor GSM building coverage – identify the root cause of one‑bar reception and propose solutions.
  • 4G/5G building upgrades – ensure your premises are ready for high‑capacity G41 / G51 repeaters or R41 mobile coverage.
  • Remote monitoring – optional service for G41/G51 alarm notifications and firmware updates (pricing TBA).
Authorized Cel Fi Reseller
Are you suffering from poor cellular coverage? 

Call ARCS today on 1300 638 311

Ideal Sites

  • Schools & TAFEs
  • Apartment complexes
  • Factories & warehouses
  • Mobile / Car / Boat / Truck installations
  • Shopping centres & supermarkets
  • Sporting stadiums & arenas
  • Temporary event venues & marquees
  • Disaster‑recovery deployments

If you manage a site where people complain about drop‑outs, we can help.

Pricing

Site Survey & Report – from $1,000 + GST


Price covers a single building up to 2,500 m² in Greater Sydney. Larger or multi‑building campuses are quoted individually.

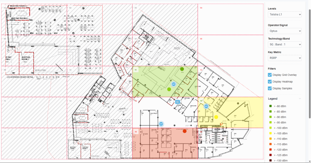
Case Study - Western Sydney Co‑Working Space

Client type: Multi‑tenant co‑working facility in Western Sydney

Environment: Two‑storey co‑working space with metal roof and shipping‑container offices that blocked mobile signals.

Challenge: Tenants reported one‑bar reception and frequent call drop‑outs on all carriers, especially Vodafone 5G.

ARCS 3‑Step Assessment

  1. Floor‑plan upload – client supplied a CAD floor plan which we imported into our survey app.

  2. On‑site grid testing – systematic walk‑through capturing 4G & 5G RSRP/RSRQ for Telstra, Optus & Vodafone across Bands 1, 28 & 78.

  3. 60‑page diagnostic report – heat‑maps, signal histograms and antenna‑placement model delivered within 48 hrs.

Key Findings

  • 4G coverage was largely acceptable (RSRP > ‑105 dBm) on all carriers.

  • 5G Band 78 failed across 90 % of the ground floor (see orange/red areas).

  • Adequate external 5G donor signal on the roof enabled a repeater solution.

Recommended Solution

Deploy a Cel‑Fi G51 package:

  • 1 × roof‑mounted donor antenna (Band 78)

  • 1 × G51 network unit with remote monitoring

  • 3 × interior panel antennas

  • Low‑loss coax + splitter

Outcome

Proposal accepted; installation scheduled. Expected to deliver full‑bar 5G coverage throughout the tenancy and future‑proof the site for additional carriers.

Download the survey summary (PDF) here

Download the survey summary (PDF)

Ready to Fix Your MOBILE Network Coverage?

Fill out the form below and we’ll confirm a survey date within one business day.

Need help completing the form? Call us on 1300 638 311.

FAQ

Is Cel‑Fi legal in Australia?

Yes – Cel‑Fi is the only carrier‑approved smart repeater authorised for use on Telstra, Optus and Vodafone networks.

How long does a survey take?

60–90 minutes for most single‑building sites.

Can you install the boosters as well?

Absolutely. We’re licensed cablers and supply Cel‑Fi hardware at competitive pricing.

Can you just supply the unit?

Yes – you can self‑install a Cel‑Fi GO; we specialise in testing and terminating hardware if you’d like professional assurance.

How do you complete a site survey?

We attend site with the latest certified GSM 4G/5G test equipment – the CompassXR – covering all public mobile networks and public‑safety systems.

Services

  • Home
  • About Us
    • Testimonials
  • Services
    • MDF Jumpering
    • Liftphone
      • Medical Phone
    • Cel-Fi Repeaters
      • Cel-Fi Optus Repeaters
      • Cel-Fi Telstra Repeaters
      • Cel-Fi GSM 4×4 Truck Repeaters
    • Data Cabling
      • Private Internet Technician
      • Registered Cabler
    • NBN Lead-In
      • NBN NTD Relocation
      • NBN Private Technicians
    • DSL Testing
      • DSL Test Report
      • Error Crc’s
      • Member Login
  • Optical Fibre Repairs
  • Photo Gallery
  • Home
  • About Us
    • Testimonials
  • Services
    • MDF Jumpering
    • Liftphone
      • Medical Phone
    • Cel-Fi Repeaters
      • Cel-Fi Optus Repeaters
      • Cel-Fi Telstra Repeaters
      • Cel-Fi GSM 4×4 Truck Repeaters
    • Data Cabling
      • Private Internet Technician
      • Registered Cabler
    • NBN Lead-In
      • NBN NTD Relocation
      • NBN Private Technicians
    • DSL Testing
      • DSL Test Report
      • Error Crc’s
      • Member Login
  • Optical Fibre Repairs
  • Photo Gallery

Contact Us

1300 638 311
[email protected]
Servicing Sydney and surrounds
ABN: 50 607 139 551

Follow Us

Facebook Youtube

Copyright © 2023 | All Rights Reserved | Web Design by JS Website Design

  • Privacy policy
  • Terms & Conditions
  • Privacy policy
  • Terms & Conditions